Shandong Guanfeng Machinery
30T/D玉米压片成套设备工艺流程
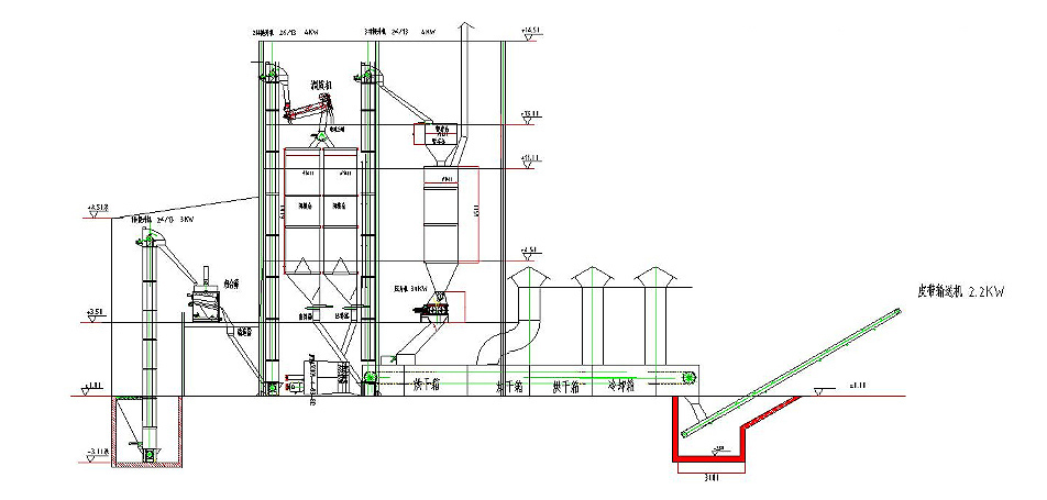
100T/D玉米压片成套设备工艺流程
120T/D玉米压片成套设备工艺流程
150T/D玉米压片成套设备工艺流程
300T/D玉米压片成套设备工艺流程